〒391-0001 長野県茅野市ちの上原694-1
中央本線茅野駅 徒歩26分・車5分/駐車場:有)

受付時間
10:00~18:00

定休日

水曜日

お気軽にお問合せ・ご相談ください

0120-406-315

blisslife施工例「パパまる」コーディネート

★「パパまる」42坪5LDK+屋根裏収納 南玄関(左)
 <納戸やパントリー、大きなWICを完備・広いSICはとっても便利>

 42坪5LDK+屋根裏収納 南玄関(左) 間口6.5 太陽光ソーラーパネル5.92kw
外壁:ニチハ ❖モエンエクセラード16 Vシリーズ セリオスタイルV
メイン<プラムMGホワイト>
   アクセント<プラムMGチャコール>
屋根:ダークグレー :ミルクホワイト 破風:ミルクホワイト サッシ枠:プラチナステン

配置図と1F間取図

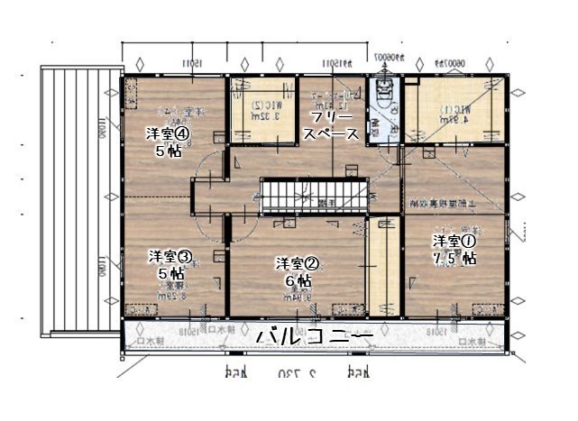
2F間取図

9帖屋根裏収納

キッチン:タカラスタンダート
     Ⅰ型「グランディア」
ホーロー扉カラー:ブルーグリーン
天板:アクリル人造大理石
    ソリッドライトグレー

玄関扉:YKKヴェナードD30 片開き
扉カラー▶ガトーアカシア
ストレートハンドル:ブラック 
玄関土間タイル:LIXIL コンテⅡ 300角 CON-7

リビング床:ブラウンチェスナット
建具・巾木:ショコラブラック
天井:健康快適天井材クリアストーン

 

リビング床:ブラウンチェスナット
天井:健康快適天井材クリアトーン
サッシ内側:ダークブラウン
階段:ブラウンチェスナット

4.5畳和室
窓枠:ダークウォールナット
建具:ショコラブラック
:半畳縁なし清流畳 白銀色

洋室 :ブラウンチェスナット
建具・巾木:ショコラブラック
天井:健康快適天井材クリアトーン

収納 可動棚:ホワイト
:標準クロス
:ブラウンチェスナット
天井:健康快適天井材クリアストーン

洗面脱衣室
洗面台:LIXIL EV W900
フルスライド
扉カラー:ディープグレー
天井:健康快適天井材クリアトーン
:CFシートSINCOL▶E5101

トイレ:パパまるオリジナル
便器&手洗器 ホワイト
手洗いカウンター:チャコール
天井:健康快適天井材クリアトーン
:CFシートSINCOL▶E5101

外壁:ニチハ❖モエンエクセラード16Vシリーズ ▪セリオスタイルV
メイン▶プラムMGホワイト
アクセント▶プラムMGチャコール
水切り:ブラック

・ウッドデッキ
・透水性・遮熱性インターロッキング SBICソルベ
・人工芝
・透水性インターロッキング SBIC オールラウンドペイブ

フェンス:LIXIL
フェンスAB YS3-K型 片面木彫・横スリート3
ブラック+チェリーウッド
フリーポールタイプT-8