〒391-0001 長野県茅野市ちの上原694-1
中央本線茅野駅 徒歩25分・車5分/駐車場:有)

受付時間
10:00~18:00

定休日

水曜日

お気軽にお問合せ・ご相談ください

0120-406-315

blisslife施工例「パパまる」コーディネート

★「パパまる」33坪4LDK 南玄関(左) 

 33坪4LDK+屋根裏収納 南玄関(左) 間口5.0
外壁:ニチハ ❖モエンエクセラード16 ベース:ディスタシェイドV ストレムMGクリーム
                 アクセント:マイスターウッド調V イデアルMGブラウン
屋根:ダークブラウン :ミルクホワイト 破風:ホワイト サッシ枠:ホワイト 水切り:シルバー

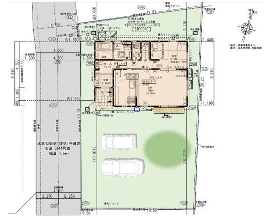
敷地配置図

1F間取図

2F&屋根裏収納

キッチン:タカラスタンダードI型「グランディア」
ホーロー扉カラー:ホワイト
キッチンパネル:マイルドホワイト
天板:ソリッドホワイト
レンジフード:ステンカラー
アクセントクロス:サンゲツFE76657

: EIDAI ハードメープル
建具:ウッドワン ホワイト
天井:健康快適天井材クリア

リビング
:EIDAI ハードメープル
天井:健康快適天井材クリア
サッシ枠:ホワイト
 窓枠:YKK ホワイトウォールナット

洗面室 
洗面台:LIXIL EVシリーズ W750
 :クリエペール(引出)

浴室 LIXIL AX 1616サイズ
 浴槽:エコベンチ浴槽 ホワイト
壁アクセント:ウッドグレインライン

 

ニッチ
壁の厚みを利用したニッチの中に
お風呂・インターホン・照明のリモコン類をスッキリ収納

1F階段下トイレ:TOTO
便器:ホワイト
収納:ホワイト
照明:施主様支給

2Fトイレ:TOTO
便器:ホワイト
収納:ホワイト
照明:施主様支給

2Fフリースペース
:EIDAI ハードメープル
室内干し:ホスクリーン

サッシ枠:ホワイト
 窓枠:YKK ホワイトウォールナット

和室4.5畳

:半畳縁無し 清流14 灰桜色
建具:ホワイト 

 屋根裏収納8帖
:EIDAI ハードメープル

外構
インターロッキング・人工芝・ウドデッキ・砕石・アスファルト
玄関までのアプローチには天然石のような味わいで透水性がアップしたインターロッキングブロックを敷き込みました。
※エスビック パエリア