〒391-0001 長野県茅野市ちの上原694-1
中央本線茅野駅 徒歩26分・車5分/駐車場:有)

受付時間
10:00~18:00

定休日

水曜日

お気軽にお問合せ・ご相談ください

0120-406-315

blisslife施工例「サンテラス吹抜けタイプ」コーディネート

★「サンテラス吹抜けタイプ」39坪4LDK 南玄関
 <1階で生活が完結する平屋にプラスαの2階と広いテラスが魅力的>

※ 画像は施工中のものです

 39坪4LDK 南玄関 太陽光ソーラーパネル4.92kw
外壁:ニチハ ❖モエンエクセラード16 Fuge(フュージェ)
全面 スプーモ<ラフラMGアッシュ>
屋根:緑 :ミルクホワイト 破風:ホワイト 水切:アバーグレー 
サッシ枠:プラチナステン 電動シャッター:グレー

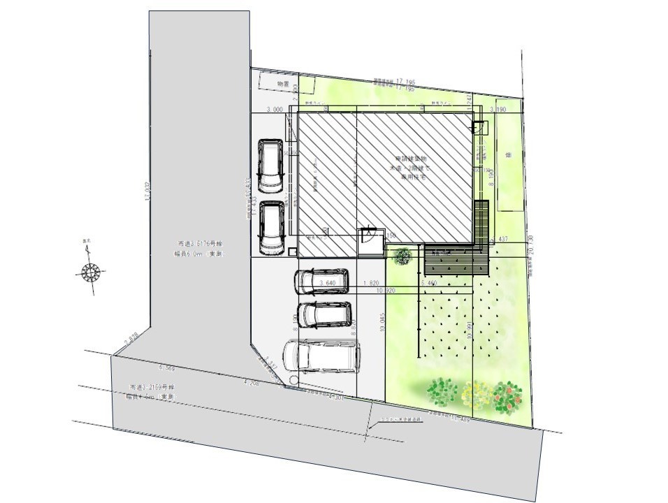
敷地配置図

1F間取り

2F間取り

キッチン:タカラスタンダートⅠ型「グランディア」
ホーロー扉カラー:ホワイト
カウンター:ショコラブラック
アクセントクロス手前:LB-9565
      奥収納部:LB-9578

:EIDAI<ブラックチェリー>
巾木:ホワイト
建具:ウッドワン<ライトブラウン>
アクセントクロス:LB-9565
カウンター:ショコラブラック

 

アクセントクロス:LB-9565
窓枠:ホワイトウォールナット
サッシ内側:ダークブラウン
階段:ブラックチェリー

 

リビング床:ブラックチェリー
天井:クロス
窓枠:ホワイトウォールナット
サッシ内側:ダークブラウン

リビング横滑り出し窓
上:立った時に見える八ヶ岳
下:座った時に見える八ヶ岳

書斎
:ブラックチェリー
カウンター:ショコラブラック
巾木:ホワイト
アクセントクロス:LB-9570

パントリー:枕棚+パイプハンガー
アクセントクロス:LB-9574

洗面脱衣室
洗面台:LIXIL EV W750
扉カラー:クリエペール
カウンター:ショコラブラック
クロス:SLP283
アクセント:SLP285
:CFシートSINCOL▶E5101

トイレ:TOTO
便器:ホワイト
キャビネット:ホワイトウッド
:CFシートSINCOL▶E5101

外壁:窯業系サイディング
ニチハ❖モエンエクセラード16
Fuge(フュージェ)
スプーモ<ラフラMGアッシュ>
「メンテナンスコストの大幅削減」と「仕上がりの美しさ」を実現した新世代の外装材

※施工中画像

屋根:緑 
:ミルクホワイト 
破風:ホワイト

玄関ドア:LIXILヴェナードD2仕様
E04型‣ダージリンウォールナット
タイル:LIXILコンテⅡ CON-8