〒391-0001 長野県茅野市ちの上原694-1
中央本線茅野駅 徒歩26分・車5分/駐車場:有)

受付時間
10:00~18:00

定休日

水曜日

お気軽にお問合せ・ご相談ください

0120-406-315

blisslife施工例「はぴママ」コーディネート

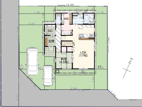
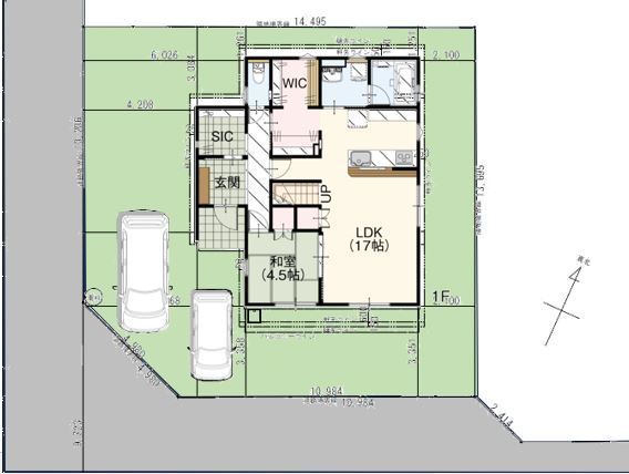
 ★「はぴママ」35坪4SLDK 南(左)玄関
 <ココにこんな収納あったらいいな!で家事の負担を減らして家族が余裕をもって暮らせる家>

 35坪4SLDK 南(左)玄関 間口4.5
外壁:ニチハ/モエンエクセラード16Vシリーズ❖ベース:ミラージュタイルV<エメMGチャコール>
❖アクセント:コンクリート打ちっ放し<コンクリートMGライトグレー>
屋根:茶 :オークブラウン 破風:茶 水切り:茶
笠木・サッシ枠:プラチナステン(外側)

敷地図と配置図

1F間取図

2F間取り+屋根裏収納

1F・2F トイレ 
便器:TOTO GGーJ ホワイト
キャビネット・カウンター:ミディアムウッド
窓枠:ホワイトウォールナット
:準不燃QM9448
:CF シンコールE5101(石目調)

洗面脱衣室 
:CF シンコールE5101(石目調)
洗面台:LIXIL EV W750(三面鏡)
フルスライド〈クリエモカ〉
笠木:ミディアムウッド

 浴室:LIXIL「AX」1616サイズ
壁パネル/ベース:ホワイト(マット)
アクセント:ウォールナット
浴槽:ホワイト・エコベンチ
エプロン:ホワイト :ホワイト
カウンター・収納:ライトグレー 

 

玄関扉:ヴェナードD2仕様 片開きC09型
ドア色:桑炭
把手:洋風カーブハンドル<ブラック>
玄関タイル・ポーチ:LIXIL CON-11

玄関収納:グレージュ
収納建具:ウッドワン<グレージュ>  
玄関土間タイル:LIXIL コンテⅡ 300角 タイル(磁器質)CON-11
SIC棚:ホワイト・ハンガーパイプ

キッチン:タカラスタンダード
キッチン扉:ホワイト
キッチンパネル:マイルドホワイト
天板:人造大理石<ソリッドホワイト>
手掛り桟:扉サイドモール<シルバー>
レンジフード:シルバー

和室
:半畳縁無し(和紙)灰桜色
:シンコールSLP270
天井:クリアトーン
建具:ウッドワン

LD
:EIDAIアトムフィットGM<ナチュラルオーク>
階段:ナチュラルオーク
建具:ウッドワン<グレージュ>

(DK側
:EIDAIアトムフィットGM<ナチュラルオーク>
カウンター・巾木:グレージュ
アクセントクロス:キッチン背面<リリカラLV-3130(新番)>

寝室:東側
:ナチュラルオーク
サッシ枠:ホワイト
建具:グレージュ

寝室:西側(右奥にWIC入口)
窓枠:ホワイトウォールナット
サッシ枠:ホワイト
建具:グレージュ

洋室
:ナチュラルオーク
収納建具:グレージュ